2017年6月12日月曜日
こんにちは工務部です
注文住宅やリフォームやってます
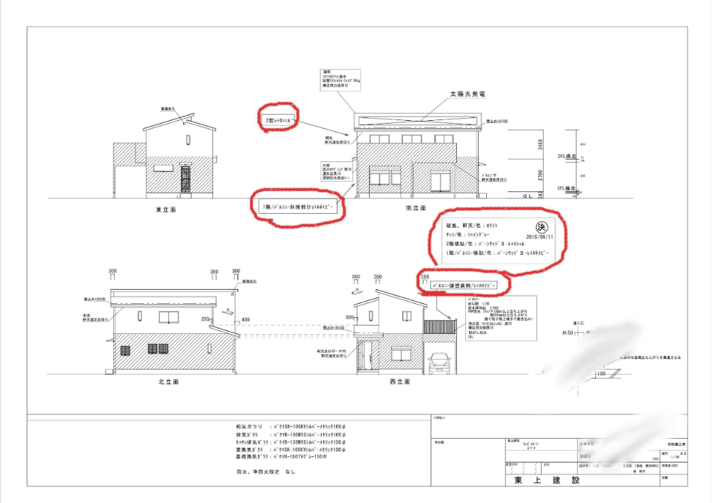
Y様邸 上棟後のお客様立ち会い
やりました
平田店長にも時間作ってもらって同席をお願いしました
未確定だった外壁も決まり
照明やコンセント位置の確認も
無事終了
赤ちゃんも愚図らづに頑張った
😄 😉 😄 😉
今日から 屋根屋さん
ご実家の 水道屋さん
作業開始です
🎶 🎶 🎶
0 件のコメント:
コメントを投稿
次の投稿
前の投稿
ホーム
登録:
コメントの投稿 (Atom)
0 件のコメント:
コメントを投稿